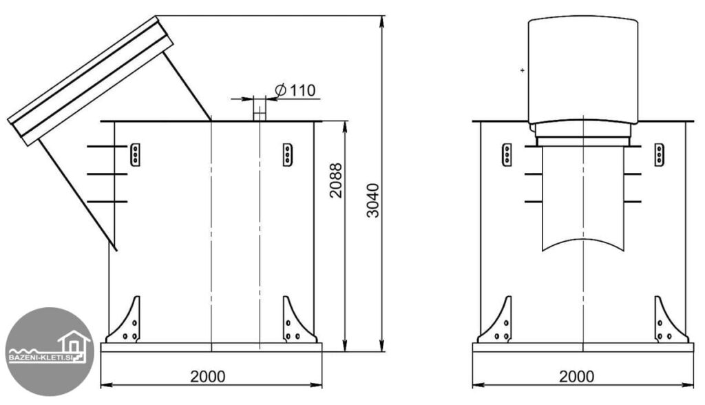
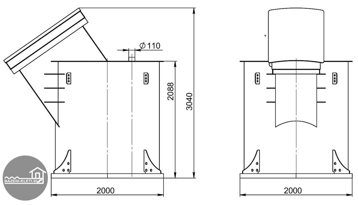
Opis
Prostorna in estetsko izpopolnjena klet #7 je opremljena s klasičnimi stopnicami za udoben vstop v notranjost shrambe. Ker se klet samo delno vkoplje v zemljo, pri vgradnji ni potrebno odvažati odvečne zemlje. Vso izkopano zemljo preprosto uporabimo za zasip po vgradnji.
V notranjosti je za shranjevanje pripravljenih 12 velikih polic, razporejenih po obodu kleti, ki skupaj nudijo kar 8m2 odlagalnih površin.


















